Transport lekki poziomy i skośny

Przenośnik taśmowy modularny – Ball belt

Przenośnik taśmowy modularny_Ball belt KW

Informacje podstawowe:

Przenośnik taśmowy modularny ball belt wykorzystywany jest do płynnego transportu produktów o różnych gabarytach i kształtach w różnych kierunkach. W skład urządzenia wchodzi stalowa rama z profilami z tworzywa sztucznego PE1000 podpierającymi górny bieg taśmy, zespół rolek podpierających dolny bieg, napęd, podpory oraz modularna taśma transportowa ball belt wykonana z tworzywa sztucznego posiadając zestawy kulek na jej powierzchni. Kulki te umożliwiają łatwe przesuwanie, obracanie lub zmianę orientacji ładunku w dowolnym kierunku. Przenośnik posiada aluminiowe lub opcjonalnie stalowe prowadnice zabezpieczające transportowane przedmioty przed wypadnięciem.

Specyfikacja urządzenia:

• Zakres prędkości transportu: od 0,5 do to 2,0 [m/s]

• Maksymalne obciążenie: 50 [kg/m]

• Podparcie taśmy: tworzywo sztuczne

• Napięcie: 24 V DC lub 400 V AC

• Sposób sterowania: Profinet

• Napęd: elektrorolka/motoreduktor

• Przekazanie napędu: bezpośrednio

• Temperatura pracy: 0–40 °C

• Elementy wyposażenia: prowadzenia aluminiowe, zaślepki burt, czujniki, podpory, elementy sterowania

 

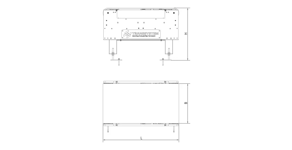
Parametry urządzenia:
Symbol Definicja Wymiar

B

Szerokość transportu [max]

400; 600; 800; 1000 [mm]

H

Wysokość

Zgodnie ze specyfikacją

L

Długość

Zgodnie ze specyfikacją

*Zmiana specyfikacji produktu na życzenie Klienta możliwa po uzgodnieniu.

Rysunek techniczny

Przenośnik taśmowy modularny_Ball belt_szkic

Przenośnik taśmowy modularny_Ball belt_szkic

Masz pytanie lub potrzebujesz wsparcia eksperta?

Nasi eksperci z chęcią udzielą Ci pomocy

Strona korzysta z plików cookie w celu realizacji usług zgodnie z Polityką Prywatności. Możesz samodzielnie określić warunki przechowywania lub dostępu plików cookie w Twojej przeglądarce.