Łuk taśmowy modularny
Łuki taśmowe modularne wykorzystywane są do płynnego transportu produktów o różnych gabarytach i kształtach na zakrętach. W skład urządzenia wchodzi rama stalowa z profilami z tworzywa sztucznego PE1000 podpierającymi górny bieg taśmy, zespół rolek podpierających dolny bieg, napęd, podpory oraz modularna taśma transportowa wykonana z tworzywa sztucznego. Przenośnik posiada aluminiowe lub opcjonalnie stalowe prowadnice zabezpieczające transportowane przedmioty przed wypadnięciem.
• Zakres prędkości transportu: od 0,5 do to 2,0 [m/s]
• Maksymalne obciążenie: 50 [kg/m]
• Kierunek łuku: prawy/lewy
• Napięcie: 400 V AC
• Sposób sterowania: Profinet
• Usytuowanie motoreduktora: silnik po wewnętrznej lub zewnętrznej
• Temperatura pracy: 0–40 °C
• Elementy wyposażenia: prowadzenia aluminiowe, zaślepki burt, czujniki, podpory, elementy sterowania
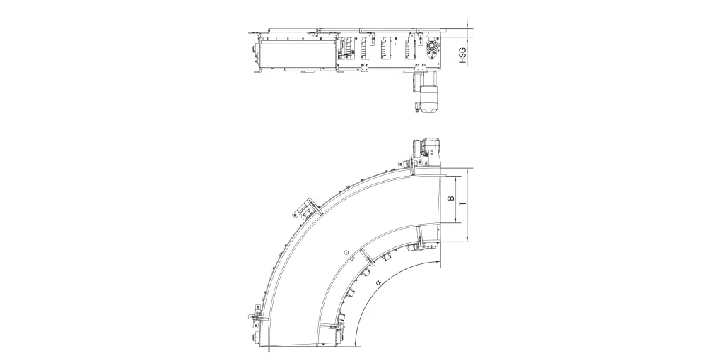
| Symbol | Definicja | Wymiar |
|---|---|---|
|
B |
Szerokość transportu [max] |
392; 592; 792; 992 [mm] |
|
T |
Szerokość taśmy transportowej |
400; 600; 800; 1000 [mm] |
|
α |
Kąt przenośnika |
45, 60, 90 [°] |
|
P |
Moc napędu |
0,37 kW |
|
HSG |
Wysokość prowadzenia bocznego |
50-300 [mm] |
*Zmiana specyfikacji produktu na życzenie Klienta możliwa po uzgodnieniu.
Łuk taśmowy modularny_szkic
Nasi eksperci z chęcią udzielą Ci pomocy
Sprawdź także pozostałe urządzenia
Realizujemy zamówienia na całym świecie.
Moving industries forward