Transport pionowy opon

Windy

Windy_rys.1 KW (1)

Informacje podstawowe

Winda służy do transportu opon pomiędzy poziomami. Głównym elementem konstrukcyjnym windy są kolumny (winda dwusłupowa) lub kolumna (winda jednosłupowa), po których porusza się przenośnik dowolnego typu (rolkowy, taśmowy, Pop-Up) zamontowany na wózku jezdnym. Ruch wózka jest napędzany przez motoreduktor. Napęd motoreduktora przenoszony jest za pomocą łańcucha bądź pasa. 

 

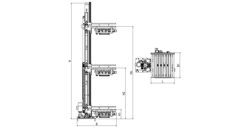
Winda dwusłupowa

Winda dwusłupowa jak sama nazwa wskazuje zbudowana jest z dwóch kolumn, po których porusza się wózek jezdny z przenośnikiem. Pozostałymi komponentami są: motoreduktor napędzający windę, wały: napędowy i przewijający, pasy lub łańcuchy napędowe, koła pasowe lub zębate oraz czujniki. 

 

chart KW.jpg

 

 

Specyfikacja urządzenia

Specyfikacja windy

Prędkość transportu

30,0  [m/min]

Maksymalne obciążenie

50,0 [kg]

Rodzaj napędu/ przekazanie napędu

Motoreduktor/ bezpośrednio

Napięcie

400 V/ 24V

Wysokość transportu 

max. 5,2 [m]

Parametry wymiarowe

Parametry windy 

Symbol

Definicja

Wymiar

H1, H2,…, Hn

Poziomy transportu

do ustalenia [mm]

H

Wysokość całkowita windy

do ustalenia [mm]

L

Długość przenośnika

1000,00—2200,00 [mm]

B

Szerokość windy

do ustalenia [mm]

B1

Szerokość przenośnika

do ustalenia [mm]

P

Moc napędu

do ustalenia [kW]

Rysunek techniczny
chart KW (1)

chart KW (1)

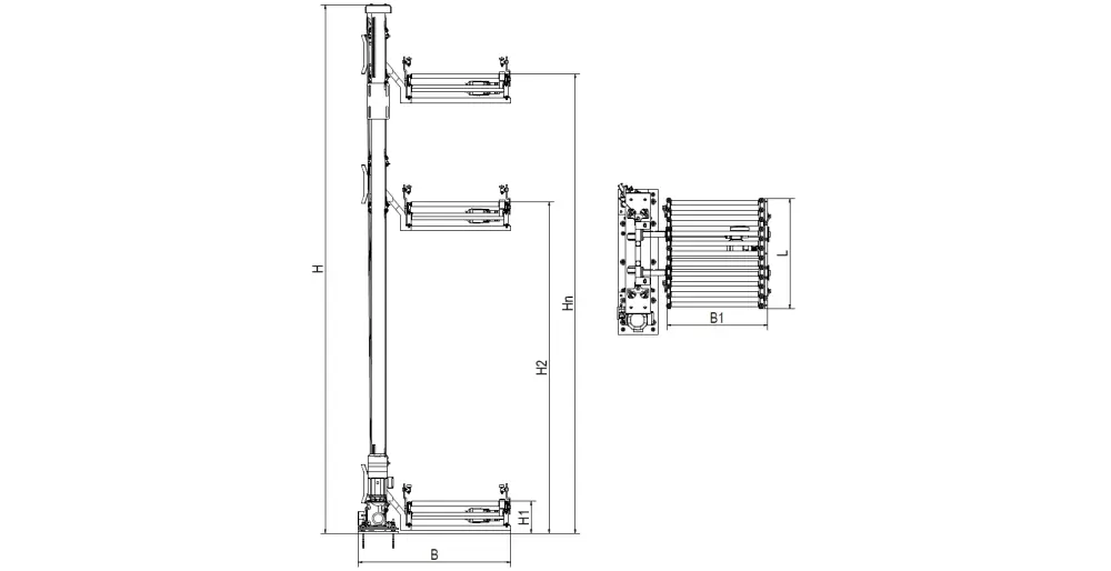
Winda jednosłupowa

Winda jednosłupowa zbudowana jest z jednej kolumny nośnej, na której zamontowany jest wózek jezdny z przenośnikiem. Inne główne komponenty to: motoreduktor, wał napędowy 
i przewijający, koła zębate, łańcuch oraz czujniki. Na słupie windy zamontowane są dwa profile, stanowiące tor ruchu, po których porusza się wózek jezdny na stałe połączony 
z łańcuchem.  

 

chart KW (2).jpg

 

Specyfikacja urządzenia

Specyfikacja windy

Prędkość transportu

30,0  [m/min]

Maksymalne obciążenie

50,0 [kg]

Rodzaj napędu/ przekazanie napędu

Motoreduktor/ bezpośrednio

Napięcie

400 V/ 24V

Wysokość transportu 

max. 7,8 [m]

Parametry wymiarowe

Parametry windy 

Symbol

Definicja

Wymiar

H1, H2,…, Hn

Poziomy transportu

do ustalenia [mm]

H

Wysokość całkowita windy

do ustalenia [mm]

L

Długość przenośnika

1000,00—2200,00 [mm]

B

Szerokość windy

do ustalenia [mm]

B1

Szerokość przenośnika

do ustalenia [mm]

P

Moc napędu

do ustalenia [kW]

Rysunek techniczny
chart KW (3)

chart KW (3)

Masz pytanie lub potrzebujesz wsparcia eksperta?

Nasi eksperci z chęcią udzielą Ci pomocy

Oferta

Sprawdź także pozostałe urządzenia

Strona korzysta z plików cookie w celu realizacji usług zgodnie z Polityką Prywatności. Możesz samodzielnie określić warunki przechowywania lub dostępu plików cookie w Twojej przeglądarce.