Przenośnik łańcuchowy paletowy
Przenośnik łańcuchowy to urządzenie służąca do transportu palet. Jego działanie opiera się na napędzie silnikowym, który współpracuje z systemami sterowania. Ruch silnika jest przekazywany na łańcuchy poprzez wał i koła łańcuchowe. W celu zmniejszenia tarcia między elementami zastosowano profile ślizgowe, co pozwala na redukcję mocy. Konstrukcja przenośnika obejmuje napęd, wał z kołami zębatymi, system napinający, profile ślizgowe, profile nośne oraz podpory.
• Prędkość transportu: zakres 0,4 [m/s]
• Maksymalne obciążenie: 500–1500 [kg]
• Technika zasilania: 400 V AC
• Sposób przekazania napędu: łańcuch 12B-2
• Temperatura pracy: 0–40 °C
• Elementy wyposażenia: prowadzenia, system napinający, profile ślizgowe, podpory, elementy sterowania, czujniki
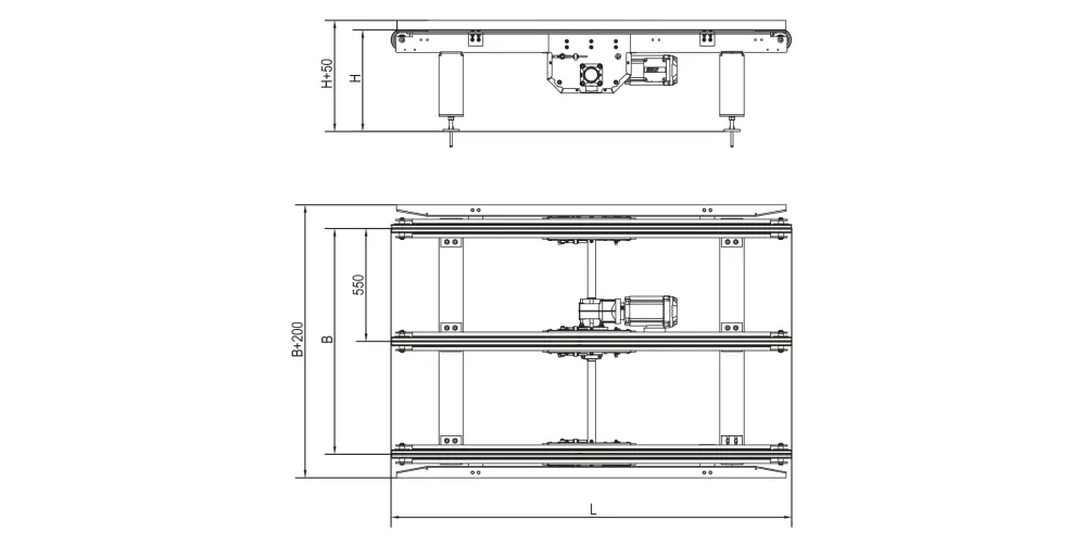
| Symbol | Definicja | Wymiar |
|---|---|---|
|
B |
Szerokość transportu |
850; 1250 [mm] |
|
L |
Długość przenośnika |
1200–6000 [mm] |
|
H |
Wysokość |
350–800 [mm] |
*Zmiana specyfikacji produktu na życzenie klienta możliwa po uzgodnieniu.
Przenośnik łańcuchowy paletowy_szkic
Nasi eksperci z chęcią udzielą Ci pomocy
Sprawdź także pozostałe urządzenia
Realizujemy zamówienia na całym świecie.
Moving industries forward